Summary Memorabilia Vedio Environment Honor Cooperative partner
Public space Urban renewal Residential apartments Cultural education Commercial hotel
Summary Environment
Artwork Interactive devices IP design
Address Join us
COPYRIGHTS @ ARCHITECTURAL DESIGN DESIGNED BY VTHINKS
分享到:
上海市建筑学会建筑创作奖评审工作始终秉承“公开、公正、公平”的原则,推荐和发现优秀建筑作品,推进建筑原创的宗旨,贯彻“尊重知识、尊重人才”的方针,弘扬和鼓励建筑创作的优秀作品树立标杆,引导城市建设和建筑设计的健康发展。
经上海市建筑学会第七届建筑创作奖评选工作委员会的审议,最终产生优秀奖30项,佳作奖91项,提名奖139项,共260项。本届建筑创作奖自2017年3月10日开始申报至3月31日,总申报项目数达609项,其中556项通过预审参与评选。日清设计经过整个团队的努力在这近600份作品中脱颖而出成功入围,各有斩获。
—— 优秀奖 ——
公共建筑类
| 上海旭辉总部大楼 |
| 天津鲁能泰山书院 |
居住建筑类
| 郑州美境东望社区规划及建筑设计 |
—— 佳作奖 ——
| 南京鲁能泰山七号院社区文化中心 |
| 宁波风华大境生活艺术中心 |
| 苏州铂悦犀湖社区文化中心 |
| 绿城·海口桃李春风邻里中心 |
| 西塘古镇民俗文化馆 |
园林景观类
|苏州如院社区园林规划与设计 |
| 上海前滩后院社区园林规划与设计 |
—— 提名奖 ——
| 苏州鲁能公馆 |
| 上海旭辉恒基中心 |
| 珠海格力广场 |
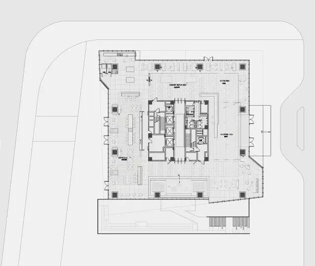
◎ 上海旭辉总部大楼
设计传达出山岳的重量感自然是表达“重”的合理解释,山岳般重量感是坚硬岩石的视觉表象传递出“重量”的一种心理暗示,这种重量感和力量感也正是企业总部建筑类型精神内核所追求的。
错动的单元之间的建筑材料选择上也做了区分,分别采用了不同反射率的玻璃和不同的幕墙节点来加大这种虚实对比。相信这种看似矛盾的、在不稳定中的稳定而达成的如同磐石重山的外在应该是和企业总部该表达的稳而变的内涵是吻合的。
◎ 一层平面图
◎ 入口大堂
工程档案
项目名称丨旭辉集团总部大楼
建设地点丨上海市申虹路1088号
项目功能丨办公
建筑面积丨14627㎡
设计/建成时间丨2014/2016.11
设计单位丨上海日清建筑设计有限公司
施工配合丨上海中森建筑与工程设计顾问有限公司
总建筑师丨宋照青
设计团队丨杨佩燊、魏文渊、郭丹、李少洪
摄影丨姚力、张英琦
详情点击原文链接
旭辉集团总部大楼
◎ 天津鲁能泰山书院
建筑整体以一种谦逊的姿态退后城市界面布置,藏于景观和廊道之后,不漏锋芒,一步一步的引导人们进入场地内部,体验着移步移景给参观者带来的乐趣。建筑布局,闹中取静,营造出充满着静谧的书院气息。
简洁的建筑形体,深远的大屋面,虚实结合的立面效果,现代的材料和工艺做法,试图创造出轻盈的,富有变化的,充满现代感的中式立面效果。
◎ 轴测图及建筑主体剖面
经由几种不同模数的组合,凹凸的材料质感更是加强了建筑表面的光影关系,使立面更加丰富生动。景观廊道吊顶面采用半透明的材料配以精致的金属扣条,华灯初上,给建筑增加一抹别样的风采。
◎ 景观廊道灯光效果
项目名称丨天津鲁能泰山7号院展示区地理位置丨天津海河教育园区结构丨混凝土+钢结构材料丨防石涂料,三层中空灰玻,暖灰色铝板,仿铜铝板建筑面积丨3000㎡设计单位丨上海日清建筑设计有限公司项目主创团队丨李竞,马云鹏, 陈成,古佳鑫文章作者丨马云鹏照片摄影丨©是然建筑摄影设计时间丨2016.03竣工时间丨2016.09
天津鲁能泰山书院
◎ 郑州美境东望社区规划及建筑设计
有别于市面上贴金带银(各种中式装饰符号)的所谓中式建筑,东望的设计是有时代感和文化归属感的现代中式风格别墅。设计团队力图从传统中式建筑中抽取空间和立面元素,以现代的建筑材料和手法进行具有时代感的演绎,比如北派中式建筑的中正规划和较为对称的平面布局、外立面强烈中式特征的院墙体系等等。
◎ 庭院实景及露天泳池
外墙主材我们建筑师选取了“美景青”石材和金色哑光铝百叶,这其中的“美景青”取材郑州当地的伏羲山,以精密的磨机转速控制打磨出哑光质感,竖向拼贴结合原创设计仿竹节竖向百叶,让外立面演绎出竹子所特有的风骨,独特雅致而不张扬。
◎ 石材拼接效果
项目地址 | 郑州郑州新区白沙BS22-16-01地块
业主单位 | 河南省美景集团有限公司
建筑设计 | 上海日清建筑设计有限公司
总建筑师 | 宋照青
主创团队 | 周军 陈波 黄健 葛伟 郭成鑫 ACT技术中心
建筑面积 | 179041.42平方米
用地面积 | 65240平方米
物业类型 | 住宅 低层/高层
容积率 | 1.49
绿化率 | 35.2%
停车位 | 692
郑州美境东望社区规划及建筑设计
◎ 南京鲁能泰山七号院社区文化中心
◎ 宁波风华大境生活艺术中心
◎ 苏州铂悦犀湖社区文化中心
◎ 绿城·海口桃李春风邻里中心
◎ 西塘古镇民俗文化馆
◎ 苏州如院社区园林规划与设计
◎ 上海前滩后院社区园林规划与设计
◎ 苏州鲁能公馆会馆
◎ 上海旭辉恒基中心
◎ 珠海格力广场
评审专家委员会
崔愷(委员会主任)丨中国工程院院士
丁洁民(副主任)丨同济大学建筑设计研究院(集团)有限公司总裁
吕品晶丨中央美术学院建筑学院院长
项祖荃丨原上海现代建筑设计(集团)有限公司总裁
汪孝安丨华建集团华东建筑设计研究总院首席总建筑师
沈迪丨华东建筑集团股份有限公司副总裁兼总建筑师
章明丨同济大学建筑设计研究院(集团)有限公司原作设计工作室主持建筑师
柳亦春丨上海大舍建筑工作室合伙人兼主持建筑师
评审现场及评审团合影
Related news
上海日清景观斩获“美尚奖”金奖
华东师范大学丽娃河畔化雨书斋改造/谷德网
上海日清景观再度斩获园冶杯专业奖大奖
地址:上海市徐汇区茶陵路159弄18号
电话:86-21-63930976
Email:lacime-design@qq.com